The Paddocks, Bow Brickhill
Overview
- £21,250 STAMP DUTY PAID (T&Cs APPLY)
- 21FT LONG KITCHEN/FAMILY AREA
- UNDERFLOOR HEATING TO THE GROUND FLOOR
- 3 DOUBLE BEDROOM DETACHED HOME
- SINGLE GARAGE AND DRIVEWAY FOR 2 VEHICLES
- SEPARATE DINING ROOM
- 3 ENSUITES
- AIR SOURCE HEAT PUMPS
- EV CAR CHARGING POINT
Find out your home's value
For an up-to-date market appraisal of your property, request a valuation now.
Description
***1472 SQFT***£21,250 STAMP DUTY PAID (T&Cs APPLY)T*** 3 BEDROOMS AND 3 ENSUITESDETACHED***GARAGE AND DRIVEWAY***
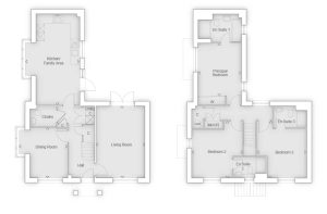
GROUND FLOOR
KITCHEN/FAMILY AREA
21' 11" x 12' 11" (6.68m x 3.94m)
DINING AREA
12' 0" x 11' 5" (3.66m x 3.48m)
LIVING ROOM
17' 2" x 11' 7" (5.23m x 3.53m)
FIRST FLOOR
PRINCIPAL BEDROOM
12' 7" x 10' 4" (3.84m x 3.15m)
BEDROOM TWO
13' 6" x 12' 0" (4.11m x 3.66m)
BEDROOM THREE
13' 6" x 11' 9" (4.11m x 3.58m)
Similar Properties
Hayfield Gardens, Dunstable
£675,000Dunstable, LU5 6QE***£25,000 CASH INCENTIVE (T&C'S APPLY)*** UNIQUE ONE OFF HOUSE STYLE** ONLY ONE ON THE DEVELOPMENT** LARGE LIVING ACCOMMODATION ** VIEWS ONTO COUNTRY FIELDS** 24'7" KITCHEN/DINING/FAMILY ROOM ** PRINCIPLE BEDROOM WITH LARGE DRESSING ROOM**3 Bedrooms2 Bathrooms1 ReceptionHayfield Gardens, Dunstable
£495,000Dunstable, LU5 6QE*****3 BEDROOM DETACHED NEW HOME *****PREMIUM SPECIFICATION ***** AIR SOURCE HEAT PUMP, SOLAR PANELS AND EV CAR CHARGING POINT*****3 Bedrooms2 Bathrooms1 Reception














