Silbury Boulevard, Milton Keynes
Overview
- Brand New
- City Centre Location
- Walking Distance from CMK Railway Station
- Integrated appliances
- Views of Central Milton Keynes
- High specification
- Available Now
Find out your home's value
For an up-to-date market appraisal of your property, request a valuation now.
Description
***BARND NEW***AVAILABLE NOW ***
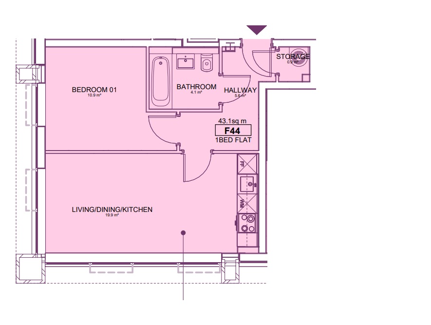
This brand new apartment has been thoughtfully designed to maximize space and light, featuring a spacious open-plan kitchen, dining, and living area with large windows that flood the space with natural light and views across central Milton Keynes. The contemporary kitchen comes complete with high-quality fittings, and the entire apartment is finished with high quality flooring and ultra-high ceilings that enhance the sense of openness and sophistication. The generously sized double bedroom offers a flexible layout. The main bathroom is fully tiled and features a shower-over-bath, heated towel rail, and a large LED-lit mirror, combining function with style.
Set within walking distance of Central Milton Keynes train station, this development offers effortless commuting, with London Euston just 30 minutes away and excellent transport links to destinations across the UK. Milton Keynes delivers the perfect blend of city living and lifestyle. From over 300 restaurants and bars to entertainment venues, shopping centre's, leisure activities, and green open spaces, there’s something here for everyone—whether you're a young professional, investor, or simply looking to upgrade your urban living experience.
***No allocated parking with the property – If parking is required, please contact Milton Keynes Council to explore permit parking options before submitting an application or paying a holding deposit***
Council Tax Band- TBC
EPC rating - B
Criteria:
- Applicants must meet a household income criteria equivalent to 30 times the monthly rent.
- Couples and individuals only (No sharers)
- No serviced apartments or sub- letting
- No Pets
- Employment/ self employment references required on all applications
Elevation, established in 1992, is one of the regions high profile property professionals, with offices covering Buckinghamshire, Bedfordshire and Cambridgeshire. Since 2008, Elevation Lettings has assisted discerning landlords seek the very best tenants who appreciate better quality homes and letting them through a specialised agent with high customer service standards.
- Open 6- days a week
- ARLA Propertymark accredited agent
- Full client money protection (CMP) covered
- Dedicated property management team
- Online maintenance reporting system
- Rent protection & Legal cover offered
Call today to arrange a viewing!
Estate Agents Milton KeynesVirtual Tour
Similar Properties
Midsummer Boulevard, Milton Keynes
£1,050 pcmMilton Keynes, MK9 1FPModern studio apartment in Central Milton Keynes with terrace. This property is equipped to a high specification with wooden flooring throughout, large windows allowing lots of natural light, kitchen with integrated Smeg appliances. These apartments are finished to an extremely high finish through a...1 Bedroom1 Bathroom20 Canal Street, Milton Keynes
£1,188 pcmMilton Keynes, MK9 4BXThis one bedroom second floor apartment is located in the modern development of Campbell Wharf. The property comprises of entrance hall, bathroom, spacious bedroom with fitted mirrored wardrobes and open plan living/ Kitchen area. All properties in the development benefit from a high specification t...1 Bedroom1 Bathroom1 Reception










