Quimby Rise, Eaton Leys
Overview
- Driveway with two dedicated parking spaces
- Principal double bedroom with en-suite
- Convenient ground-floor W/C
- Located within reach of good schools and childcare facilities
- Easy access to Central Milton Keynes, Bletchley, and key transport links
- Located in the highly desirable Eaton Leys development
- Surrounded by local shops and parks
Find out your home's value
For an up-to-date market appraisal of your property, request a valuation now.
Description
Modern 4-bed semi-detached home in Eaton Leys, Milton Keynes. Features en-suite, kitchen/diner, garden, parking for 2 cars. Close to schools, green spaces, and transport links.A Beautiful 4-Bedroom Semi-Detached Home in Quimby Rise, Eaton Leys, Milton Keynes – MK17 9GL Nestled in the sought-after new community of Eaton Leys, this impressive four-bedroom semi-detached home in Quimby Rise offers the perfect blend of modern living, family-friendly surroundings, and superb convenience. Eaton Leys is an exciting and thoughtfully designed development positioned on the southern edge of Milton Keynes, giving you the best of both worlds—peaceful suburban living with effortless access to excellent amenities, green spaces, and transport links. The location benefits from a welcoming neighbourhood atmosphere, with beautifully laid-out streets, landscaped areas, and easy access to extensive walking and cycling routes. Milton Keynes itself is known for its exceptional infrastructure, shopping districts, schools, parks, and connectivity. Residents can enjoy quick travel into Central Milton Keynes, Bletchley, and beyond via major road links including the A5 and A421, as well as nearby rail services with direct lines to London. Eaton Leys is also close to picturesque Buckinghamshire countryside, providing a balance of urban convenience and rural calm that appeals to families, professionals, and investors alike.
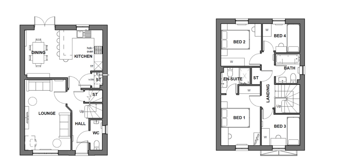
Stepping inside, you’re welcomed by a convenient ground-floor W/C—ideal for busy households and visiting guests. Beyond the hallway sits a spacious, beautifully presented lounge, offering a warm and comfortable environment perfect for relaxing evenings, social gatherings, or cozy family time. To the rear of the property is the heart of the home: a modern, well-designed kitchen/diner. This space features a selection of integrated appliances that make day-to-day living effortless, combining practicality with a sleek contemporary finish. The generous dining area is perfect for meals, entertaining, or working from home when needed. Double doors open out onto the rear garden, allowing natural light to pour in and creating a seamless indoor–outdoor flow—ideal for summer dining, children playing, or simply enjoying your own private outdoor space.
Upstairs, the property continues to impress. The principal double bedroom offers a serene retreat, complete with its own private en-suite, adding luxury and convenience. The remaining three bedrooms are wonderfully versatile—perfect for children’s rooms, guest accommodation, a dedicated home office, a hobby room, or even a dressing room depending on your lifestyle needs. Their flexibility ensures the home can grow and adapt with you, making it suitable for a wide range of living arrangements.
The property also benefits from a driveway providing two dedicated parking spaces, offering secure, convenient off-road parking for residents and visitors alike.
Overall, this property presents a fantastic opportunity for families or investors. Families will appreciate the peaceful community feel of Eaton Leys, nearby open spaces, and excellent access to Milton Keynes’ wide range of schools, leisure facilities, and shopping. Investors will recognise the strong rental demand in the area, the modern design, and the long-term growth potential of a developing neighbourhood with superb transport links and ongoing local investment. With its modern layout, stylish finishes, and prime location, this four-bedroom semi-detached home in Quimby Rise is more than just a property—it’s a place to settle, grow, and enjoy for years to come.
Kitchen
Living Room
Main Bedroom
Bedroom
Bedroom
Bathrooms
Similar Properties
Bullington End Road, Castlethorpe, MK19
£400,000 Offers In Excess OfMilton Keynes, MK19 7ER4 Bedrooms1 Bathroom1 Reception


























