Amethyst House, 602 South Fifth Street
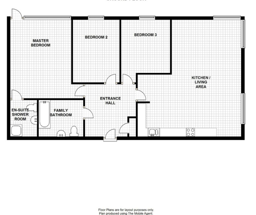
Overview
- Secure underground parking
- Concierge main reception
- Bright corner plot
- Two large balconies from living room and bedroom one
- Family bathroom and en suite
- Available now
- 93 Sq Metres
- Unfurnished
Find out your home's value
For an up-to-date market appraisal of your property, request a valuation now.
Description
***AVAILABLE NOW*** RARELY AVAILABLE THREE BEDROOM APARTMENT***TWO BALCONIES***
This rarely available three-bedroom apartment is located in the highly desirable Vizion complex in Central Milton Keynes. Large entrance hall, corner lounge with impressive city views and wrap around balcony, stylish fitted kitchen diner with built in appliances. Three large bedrooms with an en-suite to bedroom one and further modern bathroom suite. the property benefits from secure underground parking, concierge facility and walking distance of mainline railway station, shopping and leisure amenities.
Council Tax Band- D
EPC rating - B
Criteria:
- Applicants must meet a household income criteria equivalent to 30 times the monthly rent.
- Couples, families and individuals only (No sharers)
- No serviced apartments or sub- letting
- No Pets
- Employment/ self employment references required on all applications
Elevation, established in 1992, is one of the regions high profile property professionals, with offices covering Buckinghamshire, Bedfordshire and Cambridgeshire. Since 2008, Elevation Lettings has assisted discerning landlords seek the very best tenants who appreciate better quality homes and letting them through a specialised agent with high customer service standards.
- Open 6- days a week
- ARLA Propertymark accredited agent
- Full client money protection (CMP) covered
- Dedicated property management team
- Online maintenance reporting system
- Rent protection & Legal cover offered
Call today to arrange a viewing!
Estate Agents 602 South Fifth StreetSimilar Properties
Stinson Place, Wantage
£1,859 pcmWantage , OX12 0SB***BRAND NEW***AVAILABLE NOW***EPC RATING A***PETS CONSIDERED***This home is thoughtfully arranged across two well-planned floors, offering a comfortable blend of open living space and private rooms. Upon entering, you step into a welcoming hallway that leads directly to a bright, front-facing kit...3 Bedrooms1 Bathroom1 ReceptionTiffany Close, Milton Keynes
£1,450 pcmMilton Keynes, MK2 3NANestled in the tranquil and sought-after neighbourhood of Bletchley. Located in the desirable MK2 postcode, this property enjoys proximity to a range of local amenities, including schools, parks, shopping centers, and excellent transport links, making it an ideal choice for families and profes...3 Bedrooms1 Bathroom1 Reception























